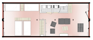
The idea to build a hostel out of vacant overseas containers, which look back on a fulfilled life at sea, is unprecedented. Well-placed cabinetwork divides the unusual layout of the containers (12 x 2.5 m) into useful sections, even integrating a separate bathroom space. Cosy upholstery made of natural materials in muted colours round off the atmosphere.
The hostel has 64 rooms with a total of 188 beds in four different types of containers. An open restaurant, a galley and a spa add even more vibrance to this unusual house. The hostel was awarded the German Tourism Prize and the Marketing Award.
| Client | Köster & Nissen GbR |
| Year | 2017 |
| Location | Warnemünde |
| BGF | 6.750 sqm |
| Architecture | Holzer Kobler |
You need to load content from reCAPTCHA to submit the form. Please note that doing so will share data with third-party providers.
More Information


